PRODUCTS

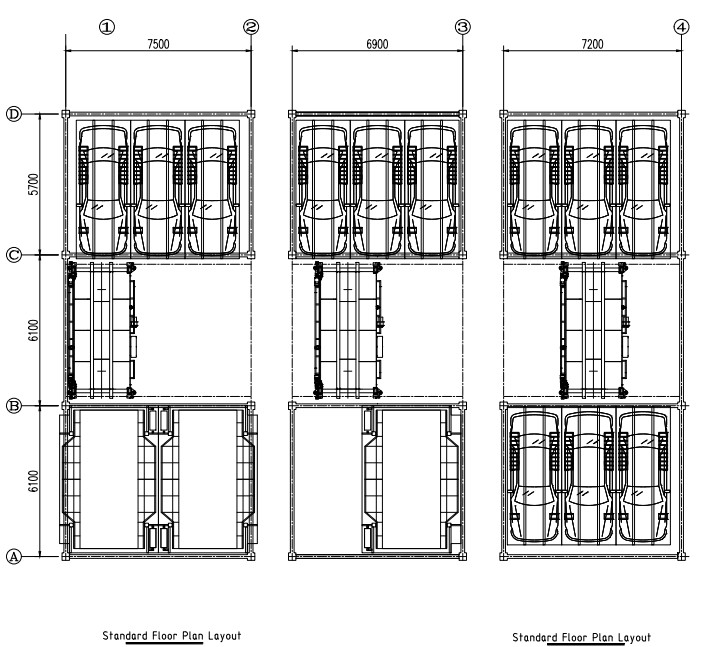
The vertical transportation of cars is achieved through a fixed position elevator, and the horizontal movement of cars on the same floor is achieved through a horizontal moving trolley. The transportation of cars from the elevator to the horizontal moving trolley, and from the horizontal moving trolley to the berth is achieved through a transporter, completing the storage and retrieval of cars.
Equipment features:
The equipment is driven by a motor drum or hydraulic drive, and can be arranged in three ways: above ground, underground, or semi above ground and semi underground. It is generally suitable for sites with large above ground or underground parking capacity.



Products
Get a Quote
Have an inquiry or some feedbak for us? Fill out the form below to contact our team.
Related Product Recommendations
*We respect your confidentiality and all information are protected.