PRODUCTS

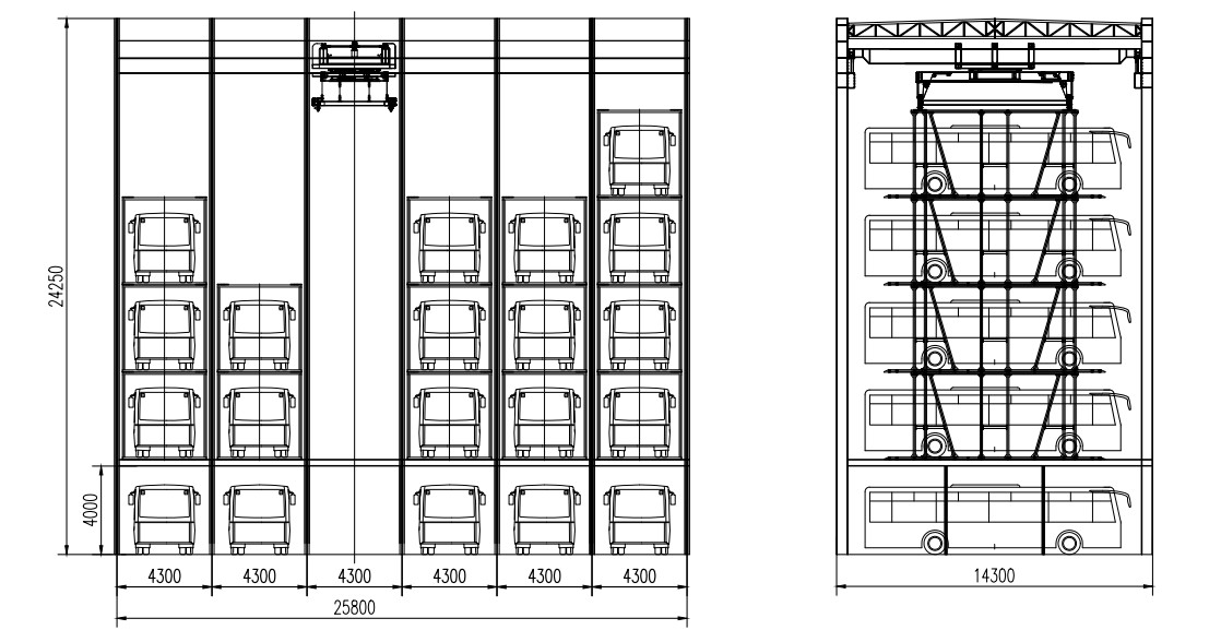
Equipment principle:
The bus stereo garage design is specifically designed for buses and coaches, featuring a container like storage feature. Each parking space is equipped with a car, which can be stacked through actions such as crane lifting, longitudinal movement, lateral movement, and rotation to facilitate vehicle access.
Equipment features:
The equipment adopts motor-driven form, stacked exchange form, and is arranged on the ground. It is generally suitable for bus parking lots, tourist attractions, etc.


Products
Get a Quote
Have an inquiry or some feedbak for us? Fill out the form below to contact our team.
Related Product Recommendations
*We respect your confidentiality and all information are protected.